III. Einsatz, Herstellen und Verlegen von Minen, F. Verminen von Straßen, Wegen und GeländeIII. Einsatz, Herstellen und Verlegen von Minen, F. Verminen von Straßen, Wegen und GeländeInhaltsverzeichnis
Ausbildungsvorschrift für die Pioniere - Teil 4b - Minen und Zünder
III. Einsatz, Herstellen und Verlegen von Minen
F. Verminen von Straßen, Wegen und Gelände

Bild 76.
Zugminenfeld, 1 T-Mine auf 1 m, verlegt von 1 Zug zu 36 Mann,
je Mann 2 T-Minen.
Staffelung rechts.

Noch Bild 76.
Zugkeil.

Gleiche Höhe der hinteren Gruppen ist nicht erforderlich.
Noch Bild 76.
Zugbreitkeil.

Gleiche Höhe der vorderen Gruppen ist nicht erforderlich.
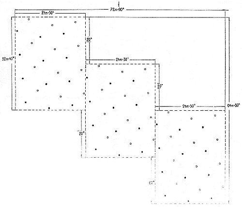
Bild 77.
Kompanieminenfeld, 2 T-Minen auf 1 m,
verlegt von 1 Kompanie zu 108 Mann, je Mann 2 T-Minen.

Wird ein Minenfeld nach Bild 77 mit 1 T-Mine auf 1 m verlegt, dann sind als Gesamtbrei-tenmaß 216 m in zusammenhängender Form zulässig.

III. Einsatz, Herstellen und Verlegen von Minen, F. Verminen von Straßen, Wegen und GeländeIII. Einsatz, Herstellen und Verlegen von Minen, F. Verminen von Straßen, Wegen und GeländeInhaltsverzeichnis