III. Einsatz, Herstellen und Verlegen von Minen, F. Verminen von Straßen, Wegen und GeländeIII. Einsatz, Herstellen und Verlegen von Minen, F. Verminen von Straßen, Wegen und GeländeIII. Einsatz, Herstellen und Verlegen von Minen, F. Verminen von Straßen, Wegen und GeländeInhaltsverzeichnis
Ausbildungsvorschrift für die Pioniere - Teil 4b - Minen und Zünder
III. Einsatz, Herstellen und Verlegen von Minen
F. Verminen von Straßen, Wegen und Gelände

142. Bild 74 zeigt ein Gruppenminenfeld, bei dem als Verlegungsform die Minenkette ge-wählt ist.

Bild 74.
Gruppenminenfeld in Minenkettenform, 1 T-Mine auf 2 m, verlegt von einer Gruppe zu 12 Mann, je Mann 2 T-Minen.

Kommando: Fünf Schritt Zwischenraum – Minenkette !

Jeder Mann verlegt seine zweite T-Mine zehn Schritt vorwärts, drei Schritt links (rechts) seitwärts seiner ersten T-Mine.

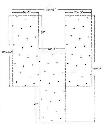
143. Zug-, Kompanie- usw. Minenfelder werden gebildet durch Nebeneinandersetzen die-ser Gruppenminenfelder und Staffelung nach der Tiefe, je nach Zweck, Lage und Gelände. Die Bilder 75 und 76 zeigen Zugminenfelder, Bild 77 ein Kompanieminenfeld.

Jede andere Art der Staffelung ist möglich; nur muß stets darauf geachtet werden, daß an den Nahtstellen die T-Minen nicht dichter als fünf Schritt = 4 m aneinanderliegen. Er-forderlichenfalls muß dies durch die Gruppenführer ausgeglichen werden. Daß die T-Minen an den Nahtstellen näher als fünf Schritt = 4 m aneinanderliegen, läßt sich auch dadurch vermeiden, daß zwischen den einzelnen Gruppenminenfeldern von vornherein 1 m Zwi-schenraum vorgesehen wird.

Bild 75.
Zugminenfeld, 2 T-Minen auf 1 m, verlegt von 1 Zug zu 36 Mann,
je Mann 2 T-Minen.

 

Durch das Nebeneinandersetzen ergeben sich Minenfelder in folgenden Breiten:

    Zug Kompanie
2 T-Minen auf 1 m 45 x = 36 m breit 135 x = 108 m breit.
1 T-Mine auf 1 m 90 x = 72 m breit 270 x = 216 m breit.
Noch Bild 75.
Zugkeil.
 
Gleiche Höhe der hinteren Gruppen ist nicht erforderlich.
Noch Bild 75.
Zugbreitkeil.
 
Gleiche Höhe der vorderen Gruppen ist nicht erforderlich.

III. Einsatz, Herstellen und Verlegen von Minen, F. Verminen von Straßen, Wegen und GeländeIII. Einsatz, Herstellen und Verlegen von Minen, F. Verminen von Straßen, Wegen und GeländeIII. Einsatz, Herstellen und Verlegen von Minen, F. Verminen von Straßen, Wegen und GeländeInhaltsverzeichnis